聚焦公司动态,解读选矿知识,剖析行业热点,分享选矿经验,我们将鑫海动态及时呈现给您。在这里,您可以更深入、更全面地了解鑫海矿业。
2016-05-09 来源:鑫海矿业 (11385次浏览)
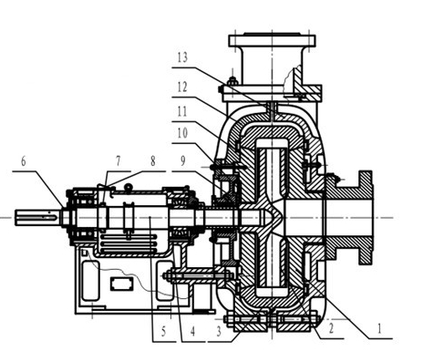
鑫海是国内一家矿山机械制造商,在为客户量身打造合理的矿物加工选别工艺的同时鑫海还为客户提供各种优良的矿山机械设备,保证选矿工艺指标的顺利实现。鑫海液下渣浆泵是一款工作稳定的输送设备,在此对其液下渣浆泵结构图进行简要的介绍。

如上图所示,鑫海液下渣浆泵主要由联轴器、轴、副叶轮、后护板、叶轮、前护板、前泵壳、后泵壳、填料箱、水封箱组成。其工作原理与常规的液下泵大致相同,但是鑫海对其结构参数、过流部件进行一系列的处理量,大大提升了其工作性能。
首先,泵是依靠叶轮高速旋转来达到输送矿浆的目的,但是通常选厂矿浆中含有大量矿砂,工作中叶轮与矿砂相对速度较大,因而长时间的输送工作势必会对叶轮造成严重的磨损。针对叶轮磨损问题,鑫海采用了自家生产的耐磨橡胶来生产叶轮,使得液下泵耐磨指数达到了128%,在减小设备维护费用的同时也提高了作业率。
鑫海液下泵耐磨损、耐腐蚀,振动小、噪音低,结实耐用,深受客户的欢迎。鑫海制造的液下泵在国内外许多矿山都完成过矿浆输送任务,实践证明这是一款工作平稳,指标稳定的矿山机械。
针对矿山生产中各种物料的输送需求,鑫海现在研发了耐磨渣浆泵、合金渣浆泵、双级渣浆泵、液下渣浆泵四种类型的产品。
内容版权归鑫海矿业所有
未经许可不可擅自使用如需转载文章
请联系我们授权
侵权必究!
湖北省是一个矿产资源丰富的省份,湖北省的具有产业优势的矿产有铁矿、铜矿、金矿、银矿、石灰岩矿等,在处理这些矿石的过程中免不了的就会用到液下渣浆泵。那么,液下渣浆泵应该去哪里买呢?
耐磨渣浆泵在选矿厂中是用来输送料浆的设备,其运转正常,能有效保障选厂的工作效率。但在实际生产中,渣浆泵长时间输送大量的料浆,轴承的承载能力、旋转精度和减摩性能等均会发生变化。当轴承的性能指标低于使用要求时,轴承就会磨损甚至失效,从而降低工作效率。

您可以在下面表格填写您的需求信息,我们的技术与销售人员会尽快与您取得联系。为保证能及时处理您的信息,请务必准确填写您的联系电话!